
Ferienwohnung
"Auf´m Kornboden
"Auf´m Kornboden


















































Ausstattung und Umgebung
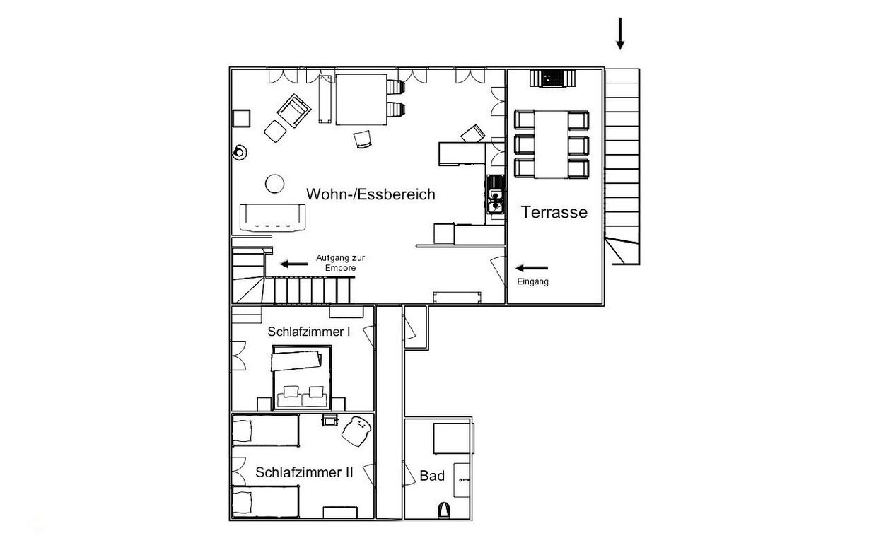
Unsere Ferienwohnung "Auf´m Kornboden" ist über eine Treppe im Außenbereich erreichbar und befindet sich in der ersten Etage. Die große Terrasse mit Süd-Ost-Ausrichtung eignet sich im Sommer hervorragend für ein Frühstück im Freien, gemütliche Grillabende oder den Glühwein-Schlummertrunk zu der kälteren Jahreszeit.
Neben einem großen Wohn-Essbereich mit gemütlichem Kamin, verfügt die Wohnung auf dieser Etage über 2 Schlafzimmer und ein Badezimmer.
Auf der Empore, die über eine Holztreppe vom Wohnbereich aus zu erreichen ist und sich über dem Küchenbereich befindet, können Sie auf dem großen Ecksofa die Beine hochlegen, TV schauen oder die Mittagsruhe genießen. Bei Bedarf können auf diesem Schlafsofa auch zwei weitere Personen übernachten.
- Sie können die Ferienwohnung ganzjährig ab 2 Nächten buchen
- Anreise ist jeweils ab 15.00 Uhr möglich und die Abreise bis 10.00 Uhr
- Die Ferienwohnung ist eine Nichtraucherwohnung und Haustiere sind nicht gestattet